Obviously, the University of Glasgow Residential Services has a lot of the basic information about Cairncross, like how many students live there, how many rooms, what amenities the rooms have. But some of the info just isn't there. Or they pretend its there but when you click on the link it "can't be found" (which isn't very helpful at all).
This is the general Univeristy of Glasgow accomodations website: http://www.gla.ac.uk/undergraduate/accommodation/
And this website is just for Cairncross House:
http://www.gla.ac.uk/undergraduate/accommodation/residenceprofiles/cairncrosshouse/
Some of the basics about Cairncross House (I'll try not to repeat anything thats on the U of G website):
There are four floors, and as far as I can tell, the top floor (the 3rd floor if you're from the UK or the 4th floor if you're American), is a girls only floor. At least, there is always a girls only floor - I have no actual guarantee that it's always the top floor.
To get into Cairncross, you use a key fob on a pad near the door, and that lets you in. Then you're in a little "reception" area I guess you could call it, and the desk for Reception/Security is right in front of you. If you go to the left, there are the doors for the Common Room, which is pretty big. It has a bunch of couches, some chairs, a TV, ping pong table, and two vending machines (one for sodas and one for snacks). This is also where mailboxes are, and you get a mailbox based on your last name, and share it with everyone else with the same last initial. You all get a little key to go with your key fob. Back in the reception area, if you go straight ahead from the door, that's how you get to all the rooms.
Here's a video that I took going from outside Cairncross House to my room.
It appears that there are about 12-15 people assigned to each kitchen (which in my opinion, is way too many people). It works by your room number. There's a sign on each kitchen's door that says which rooms the kitchen is for. Bathrooms are not assigned (this kind of confused me on my first day), and I think there are two full bathrooms for maybe 15 - 20 rooms (some of which are most likely twin rooms), and then there's also a room with just a shower.
Cairncross is NOT organized apartment-style. I couldn't quite tell this when I was looking into Cairncross. It is just long hallways, with rooms, kitchens and bathrooms off of it.
There are two laundry rooms in the building, one on the 1st floor, and one on the 4th floor. Two washers and two dryers per room. A friend sent me this website at one point during the semester, and it was very useful to me to figuring out when a washer or dryer was available.
As for the rooms themselves, they're in pretty good condition. I've never seen dorm rooms (in person) in the US, so I can't say if they're better or worse than in the US. One perk of Cairncross is that the rooms all have their own sinks. This was one of those things that I didn't think was a big deal but it was VERY nice to have. It would have been fairly miserable without that.
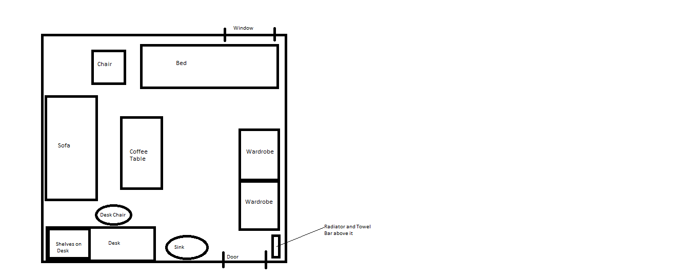
The link for the floorplan for a large single room doesn't work on the Glasgow website, so I drew one up based on my room. I am no artist, so its not fantastic. And it doesn't quite show how big the room is, but at least it shows what was in it, and the placement. I saw a couple of other rooms that were large singles and they all had different furniture placement, but it was fairly similar.
And to end, here are some pictures of Cairncross that my friend Linda took for me (I never got a chance to take them while I was there).
A generic bathroom at Cairncross (although usually they have showers, not tubs)
And then these pictures of my kitchen (yes, these are actual pictures of the kitchen that was assigned to me), I'm posting partially to show the "typical" setup of a Cairncross kitchen, and partially to shame the people I shared the kitchen with by showing what a pigsty!
Two stoves/ovens per kitchen
Tons of cabinets (I kept my food in my room)
Two fridges per kitchen, but the fridge is only the top half of each one. There isn't a lot of space... One microwave, one toaster
Trash is supposed to be taken out by the people that use the kitchen, and there is a kitchen rota to say who is responsible for it each week.
Two tables, with four chairs at each table
Lockers in the kitchen, I guess for storing food or something? I'm not 100% sure - I never used them. But you need to bring your own lock
So thats pretty much everything I can think of that would be of use to know - I hope it helps somebody! If I think of anything else about life at Cairncross, I'll add it in.
And oh, by the way, every Thursday around 2/2:30, they test the fire alarm bell. It ALWAYS rang just long enough for me to start to get up to evacuate.











the bathroom doesn't look as bad you said but that kitchen is disgusting!
ReplyDeleteThe bathroom doesn't look bad because thats not actually one of the bathrooms I used. And as far as I know, the ones with the tubs in them were usually in better (cleaner) condition because people didn't use them as much.
ReplyDeleteThank you!
ReplyDeleteI was hesitating between several accommodation places at Glasgow Uni and this info helped a lot. Thanks!
ReplyDeleteIts perfect apartments for student lots of student want this apartment for long stay .tell me about the rent and agreement thanks .
ReplyDeleteInternational student accommodation in Preston
Where is the best place to live close to UCLAN | Leighton Hall Preston
This comment has been removed by the author.
ReplyDeleteTanks for the information it is very conclusive to the students.
ReplyDeletestudent home
Student accommodation seems stressful for students who move out for the first time,
ReplyDeleteFor all such students we have got beautiful, top-class apartments and houses
check out this property on our website
Student Accommodation Liverpool